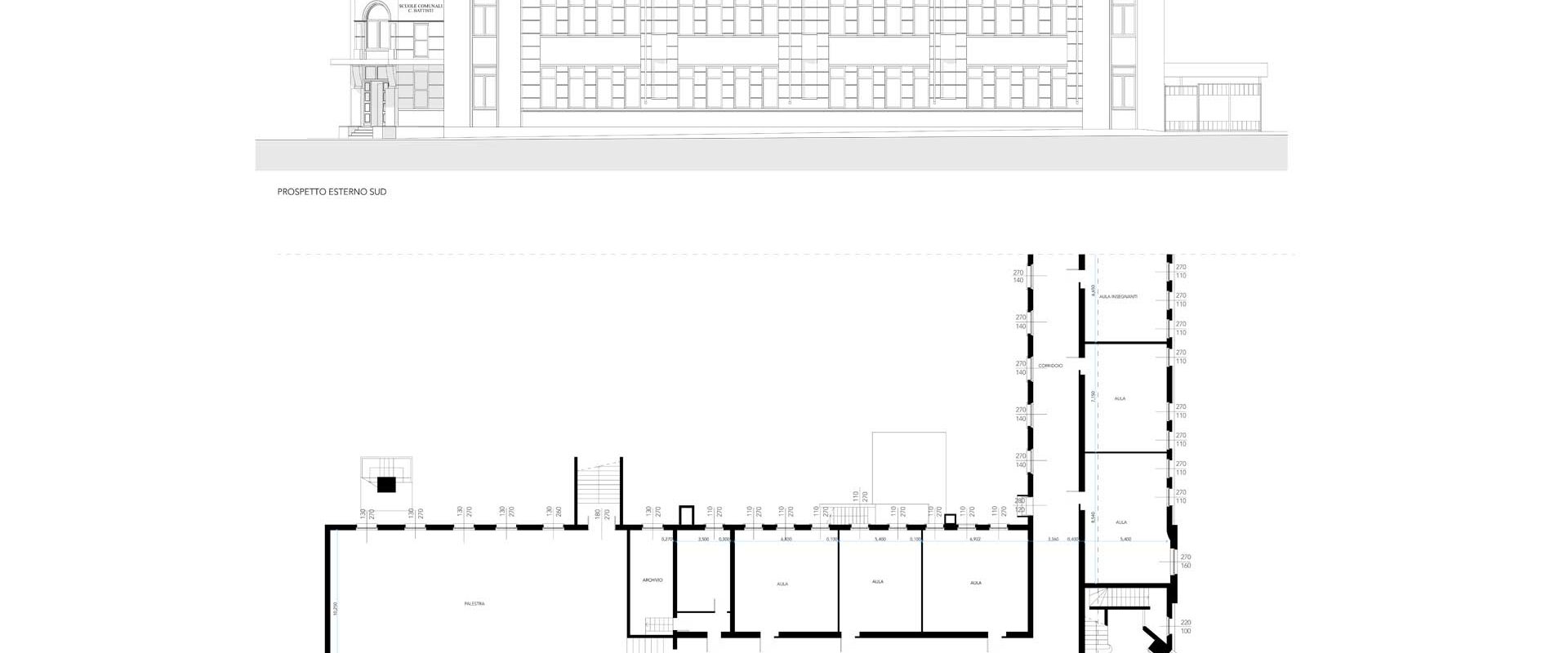
Il progetto prevede la riqualificazione energetica della Scuola Elementare “C. Battisti” a Cogliate (MB). L’obiettivo è il contenimento e la decarbonizzazione dei consumi energetici, tramite un insieme di interventi per la trasformazione in edificio a energia quasi zero (NZEB -Nearly Zero Energy Building).
Il progetto sposa l’esigenza di rinnovare l’edificio nell’aspetto, nelle strutture e negli impianti ma soprattutto la volontà di ridurre al minimo i consumi energetici grazie a: adottamento di involucro edilizio performante, utilizzo di fonti energetiche rinnovabili, attenzione alla qualità acustica degli ambienti, utilizzo di materiali biocompatibili nel processo costruttivo.
Gli interventi previsti nell’intervento globale saranno: la coibentazione di strutture disperdenti, la sostituzione dei serramenti e sistemi oscuranti, la riqualificazione della Centrale Termica con pompe di calore elettriche, l’installazione di impianto di Ventilazione Meccanica Controllata (VMC), di Building & Automation Control System (BACS), di un impianto solare fotovoltaico e il restauro della porzione storica ad angolo su strada.
Si raggiunge così una diminuzione dell’energia primaria globale rispetto lo stato di fatto di oltre l’80%.

